雙法蘭式荷重傳感器是一種兩端帶法蘭結構的力敏檢測裝置,通過法蘭連接受力部件,利用彈性體受力形變轉化為電信號,實現對壓力、拉力等荷重的測量。其安裝便捷、抗偏載能力較強,適用于大型設備稱重、結構件受力監測等場景,能穩定輸出力值數據,保障系統可靠運行。精度高,性能穩定,結構密封性好。
廣泛應用于水泥、煤炭等各種行業的電子汽車衡、軌道衡、平臺秤及其他各種稱重、測力的工業自動化測量控制系統。

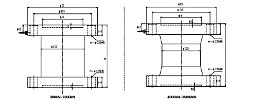
| 量程(KN) | 量程(t) | D | D1 | D2 | d | H | H1 | H2 | n-ΦC |
| 300 | 30 | 145 | 120 | / | 85 | 130 | 22 | 15 | 12-Φ16 |
| 500,600 | 50,60 | 197 | 160 | / | 110 | 160 | 25 | 15 | 12-Φ22 |
| 1000 | 100 | 240 | 200 | / | 135 | 230 | 42 | 28 | 12-Φ26 |
| 1500-2500 | 150-250 | 305 | 250 | / | 160 | 326 | 57 | 45 | 12-Φ32.5 |
| 3000 | 300 | 415 | 360 | / | 256 | 358 | 69 | 50 | 18-Φ32.5 |
| 4000 | 400 | 415 | 360 | / | 265 | 358 | 80 | / | 15-Φ32 |
| 5000 | 500 | 415 | 360 | / | 256 | 398 | 69 | 45 | 18-Φ32 |
| 10000 | 1000 | 600 | 510 | / | 352 | 480 | 110 | / | 20-Φ45 |
| 25000(A) | 2500(A) | 700 | 610 | / | / | 800 | 240 | / | 24-Φ45 |
| 25000(B) | 2500(B) | 640 | 550 | / | 280 | 600 | 150 | / | 20-Φ45 |
| 35000 | 3500 | 700 | 610 | / | 335 | 800 | 240 | / | 24-Φ45 |
傳感器接線示意圖: 傳感器受力圖:


| 參 數 | 技術參數 | 參 數 | 技術參數 |
| 量程 | 350KN~35000KN | 適用溫度范圍 | -20~70℃ |
| 綜合精度 | 0.2%FS | 安全過載 | 120%FS |
| 靈敏度 | 2.0mV/V | 極限過載 | 200%F·S |
| 零點輸出 | ≤1%FS | 推薦激勵電壓 | 10VDC |
| 輸入阻抗 | 780±30Ω | 電纜 | 5m |
| 輸出阻抗 | ±0.03%FS | 材質 | 優質合金鋼 |
| 絕緣電阻 | ≥5000MΩ | 接線方式 | 紅:E+ 電源正,黑:E- 電源負 綠:S+ 信號正,白:S- 信號負 |
| 密封等級 | IP67 | 材質 | 合金鋼、不銹鋼 |
1.隆旅為客戶提供安裝調試服務,以及其他技術咨詢,必要時技術人員可上門提供技術培訓。客戶如有技術上疑問,技術人員將在4個小時內給出回復。
2.隆旅產品嚴格按照ISO9001國際質量體系設計生產,傳感器產品質保1年.儀表類產品質保3年,7天退換貨,終身維修。(人為損壞不在質保范圍,定制產品無質量問題不退不換。)
3.因質量問題造成的退換貨,隆旅將承擔退換貨運費。非質量問題退換貨費用將由客戶承擔。
注:質量問題是指功能,尺寸、指標、安裝方式等定制參數未按照客戶提出的要求定制,功能不符,尺寸誤差,精度不準(誤差范圍內除外)。
定制產品需雙方確認圖紙后加工生產,如產品不符合客戶要求需在二周內提出書面異議,客戶未按規定期限提出異議視為驗收合格。
如在期限內提出異議,雙方確認后確屬產品質量問題或未按雙方確認后的要求生產,可調換或退款。如無質量問題,且發貨型號與合同簽訂型號完整無誤,則不提供退換貨服務。
4. 返廠維修的產品將在3個工作日內出具檢測結果,7個工作日內完成維修。
售后咨詢
技術咨詢、返廠維修、發票、投訴建議等相關問題。售后服務熱線021-51601181
地址:上海市寶山區顧村鎮滬太路5018號梓坤科技園1號樓910室
24小時全國熱線:400-7282-986
售前咨詢熱線:021-51602986
售后咨詢熱線:021-51601181
企業公眾號
企業抖音號
企業視頻號
企業微博
企業小紅書